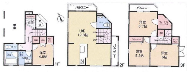
| 土地面積 | 55.39m2(16.75坪) |
|---|---|
| 私道負担 | - |
| 私道持分 | - |
| 建物面積 | 100.09m2(30.27坪) |
| 建物現況 | 空 |
| 都市計画 | 市街化区域 |
| 用途地域 | 第一種中高層住居専用地域 |
| 建ぺい率 | 70% |
| 容積率 | 200% |
| 間取り | 4LDK |
| 階数(地上) | 3階建 |
| 階数(地下) | - |
|---|---|
| 建物構造 | 木造 |
| 駐車場 | 1台 |
| 接道1 | 公道 東 幅員14.45m |
| 接道接面幅1 | 9.82m |
| 接道2 | 公道 北 幅員8.7m |
| 接道接面幅2 | 3.71m |
| 完成年月 | 2012(平成24)年2月 |
| 土地権利 | 所有権 |
| 地代 (借地権の場合) | - |
|---|---|
| 道路との高低差 | フラット |
| 取引態様 | 仲介 |
| 掲載開始日 | 2026/01/22 |
| 備考欄 | - |
| 周辺情報 | - |
| 周辺情報 (学校名) | 大清水小学校 大清水中学校 |