| 総戸数 | - |
|---|---|
| 販売戸数 | - |
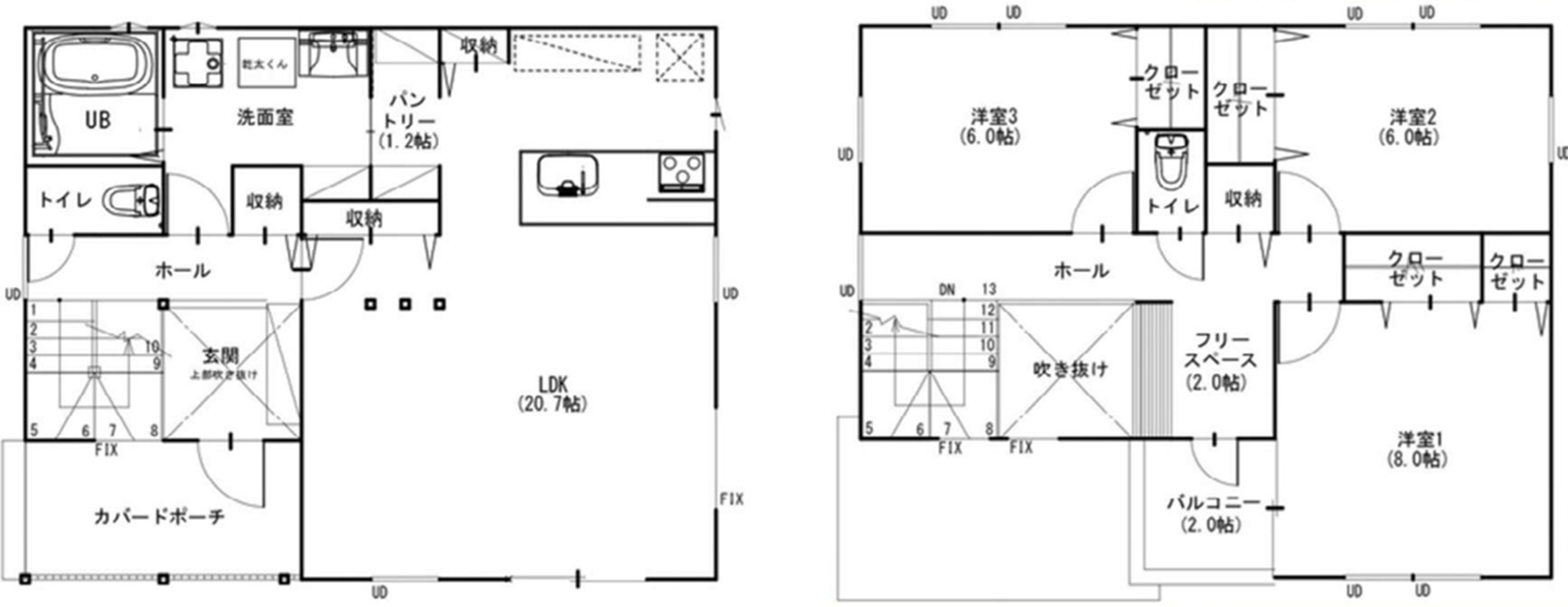
| 土地面積 | 147.16㎡(44.51坪) |
| 私道負担 | - |
| 私道持分 | - |
| 建物面積 | 118.4㎡(35.81坪) |
| 建物現況 | 完成 |
| 都市計画 | 市街化区域 |
| 用途地域 | 第一種低層住居専用地域 |
| 建築確認番号 | - |
| 建ぺい率 | 60% |
| 容積率 | 150% |
|---|---|
| 間取り | 3LDK |
| 階数(地上) | 2階建て |
| 階数(地下) | - |
| 建物構造 | 木造 |
| 駐車場 | 3台以上 |
| 接道1 | 私道 西 幅員4m |
| 接道接面幅1 | 11.231m |
| 接道2 | 公道 北 幅員11.1m |
| 接道接面幅2 | - |
| 完成予定年月 | 2025(令和7)年6月 |
|---|---|
| 土地権利 | 所有権 |
| 地代 (借地権の場合) | - |
| 道路との高低差 | フラット |
| 取引態様 | 仲介 |
| 掲載開始日 | 2025/09/06 |
| 備考欄 | - |
| 周辺情報 | - |
| 周辺情報 (学校名) | 松浪小学校 松浪中学校 |