| 総戸数 | 2戸 |
|---|---|
| 販売戸数 | 1戸 |
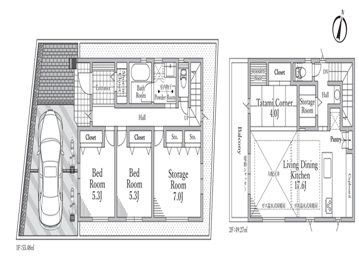
| 土地面積 | 106.11㎡(32.09坪) |
| 私道負担 | - |
| 私道持分 | - |
| 建物面積 | 104.75㎡(31.68坪) |
| 建物現況 | 完成予定 |
| 都市計画 | 市街化区域 |
| 用途地域 | 第一種低層住居専用地域 |
| 建築確認番号 | - |
| 建ぺい率 | 50% |
| 容積率 | 100% |
|---|---|
| 間取り | 1SSLDK |
| 階数(地上) | 2階建て |
| 階数(地下) | - |
| 建物構造 | 木造 |
| 駐車場 | 1台 |
| 接道1 | 公道 西 幅員3.7m |
| 接道接面幅1 | 7.9m |
| 接道2 | - |
| 接道接面幅2 | - |
| 完成予定年月 | 2025(令和7)年10月 |
|---|---|
| 土地権利 | 所有権 |
| 地代 (借地権の場合) | - |
| 道路との高低差 | フラット |
| 取引態様 | 仲介 |
| 掲載開始日 | 2026/01/16 |
| 備考欄 | 建築確認番号:第25UDI1T建00668号 |
| 周辺情報 | - |
| 周辺情報 (学校名) | 東海岸小学校 第一中学校 |